Wir bieten ein ganzjährig bewohnbares, bezugsfertiges Modulhaus an, das sich sowohl als komfortables Ferienhaus als auch als ganzjähriger Erholungsort hervorragend eignet.
Unser durchdachtes Modell mit hohem Standard ist sofort verfügbar, verbindet modernes Design mit Funktionalität und bietet Komfort zu jeder Jahreszeit.
Unsere Modulhäuser sind für die sofortige Montage bereit, was die schnelle Verwirklichung des Traums von einem eigenen Erholungsraum ermöglicht.
Angesichts der dynamischen Veränderungen auf dem Immobilienmarkt ist das ganzjährig bewohnbare Modulhaus von Unihouse die Antwort auf die wachsenden Bedürfnisse von Investoren, die nach schnellen, modernen und zuverlässigen Wohnlösungen suchen.
Warum lohnt es sich, unsere ganzjährig bewohnbaren Modulhäuser zu wählen?
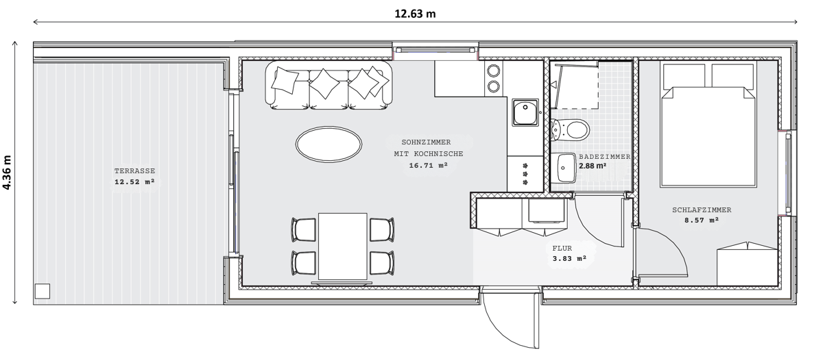
Ganzjährig bewohnbare Modulhäuser sind moderne Lösungen, die sofort bezugsfertige Wohnräume mit hohem Standard bieten. Die vorgefertigte Konstruktion ermöglicht eine schnelle Montage, was sie sowohl für Geschäftsinvestoren als auch für Privatpersonen zur idealen Wahl macht. Diese Häuser zeichnen sich durch Energieeffizienz, Langlebigkeit und die Möglichkeit der ganzjährigen Nutzung aus. Modulhäuser sind eine ausgezeichnete Option für diejenigen, die einen komfortablen Erholungsort suchen oder in ein rentables Projekt investieren möchten. Ganzjährig bewohnbare Modulhäuser mit kleiner Nutzfläche eignen sich hervorragend als funktionale Lösung für ein Freizeitgrundstück oder als wirtschaftliches Starterhaus.
Effizienter Bauprozess und optimale Nutzfläche
Moderne vorgefertigte Häuser, wie unsere Unihouse-Häuser, ermöglichen es, den Bauprozess erheblich zu verkürzen – fertige Module gelangen direkt auf die Baustelle und werden innerhalb weniger Stunden zu einem voll funktionsfähigen Wohnort. Die modulare Technologie sorgt dafür, dass der Bau eines Modulhauses mit geringen Abmessungen wesentlich schneller ist als bei einer Standardbauweise. Es ist die ideale Lösung für Menschen, die einen modernen Ansatz im Bauwesen schätzen, der Technologie mit einer praktischen Herangehensweise an die eigenen Wohnbedürfnisse verbindet. Dank der durchdachten Holzkonstruktion bieten selbst vorgefertigte 3D-Häuser mit kleiner Nutzfläche maximalen Wärmekomfort und ergonomische Raumgestaltung. Fertige Modulhäuser sind mit kompletter technischer Infrastruktur sowie modernen Innenräumen ausgestattet.



Ganzjährig bewohnbare Modulhäuser – Lösungen für Unternehmen und private Investoren
Geschäftskunden
- Camping- und Ferienanlagenbesitzer: Die modulare Bauweise ermöglicht eine einfache Erweiterung der Investition um zusätzliche Häuser, sobald die Nachfrage steigt.
- Investoren, die eine schnelle Kapitalrendite suchen: Modulhäuser ermöglichen es, die Kurzzeitvermietung bereits 2–3 Wochen nach dem Kauf zu starten – so kann die Auslastung der Anlage im Voraus geplant werden.
- Projektentwickler: Niedrigere Baukosten (bis zu 40 % im Vergleich zu traditionellen Methoden) und kürzere Realisierungszeiten erhöhen die Rentabilität der Projekte.
Privatkunden
- Besitzer von Baugrundstücken: Die ideale Lösung für diejenigen, die ein zweites Zuhause haben möchten, ohne auf das Stadtleben zu verzichten. Innerhalb eines Tages nach der Montage des Hauses auf dem vorbereiteten Fundament kann man den Wohn- und Erholungsraum genießen.
- Investoren in saisonale Vermietung: Modulhäuser ermöglichen eine Amortisation der Investition in 3–5 Jahren dank der hohen Nachfrage nach einzigartigen Objekten inmitten der Natur.
- Liebhaber eines Lebens abseits des Trubels: Energiesparende Bauweise und die Möglichkeit der ganzjährigen Nutzung schaffen ideale Bedingungen für Erholung.